Nytt stall i Mölltorp
Med start hösten 2025 pågår ett byggprojekt med ny stallbyggnad på ridanläggningen i Mölltorp. Satsningen som genomförs i samarbete mellan Karlsborgs kommun och föreningen Mölltorps Ridsällskap (MRS) med ekonomiskt stöd från Allmänna arvsfonden.
Byggnationen genomförs i två etapper där stalldel 1 beräknas vara färdig i maj-juni 2026 och stalldel 2 i november-december samma år.
Projektstöd från Allmänna arvsfonden
Karlsborgs kommun äger fastigheten och står för den största kostnaden. Föreningen har utöver det fått projektbidrag från Allmänna arvsfonden som kan ge projektstöd till föreningar där satsningen har de här målgrupperna:
- Barn och ungdomar
- Unga vuxna
- Verksamhetsmöjlighet för 65+
- Verksamheter för personer med funktionsnedsättningar. Både fysiska, neuropsykiatriska samt intellektuella funktionsnedsättningar.
Föreningens målgrupper och verksamhetsidé
Föreningens målgrupper ligger bra i linje med Allmänna arvsfonden målgrupper, som är barn och ungdomar, vamt vuxna 65 + samt nu även möjlighet att utveckla vår verksamheten för unga och vuxna personer med funktionshinder. Detta med fler hästar för inriktningen och riktigt anpassade lokaler och hjälpmedel för att bredda verksamheten.
Illustration och ritning
Så här är det tänkt att stallet ska se ut utvändigt när det är klart, klicka på bilden för att se den i större format:
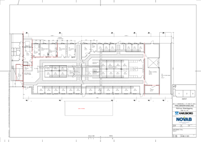
Här ser du ritningen över hela byggnaden, klicka på bilden för att se den i större format:
Projektet i punktform
- Bygget genomförs i två etapper, stalldel 1, beräknas vara färdigt i maj-juni 2026. Stalldel 2 i november-december 2026
- Inredningsmässigt skapas i största möjliga utsträckning tysta lokaler med gummigolv och tysta tak.
- Lokaler kommer att finnas för utbildning i grupp eller enskilt, i små grupprum.
- Hänsyn tas till tillgänglighet för alla, med hjälpmedel för synsvaga och blinda, personer med hörselbegränsningar, personer med fysiska begränsningar, personer med behov av att komma åt sidan för sina funktionsnedsättningar, eller bara bättre tillgänglighet.
- Väl utformade uppsittningshjälpmedel och möjlighet till samverkan med både skola, vård och omsorg.
Kontakt och information
Mölltorps Ridsällskap
Börje Ohlin, projektledare ”Nytt stall Mölltorp”, Mölltorps Ridsällskap
0705-43 07 52
-
3 FEB. 2026 Första spadtaget blev startskottet för nya stallet i Mölltorp
Nu är byggnationen av nytt stall officiellt igång! Under måndagsförmiddagen togs det första spadtaget - eller spadtagen om vi ska vara noggranna. På plats med spadarna i högsta hugg var representanter från Karlsborgs kommun, Mölltorps Ridsällskap och byggentreprenören Novab.
-
28 JAN. 2026 Första spadtaget för nytt stall på ridanläggningen i Mölltorp
Arbetet är redan igång, men nu tar vi det första spadtaget som blir det officiella startskottet för bygget av nytt stall på ridanläggningen i Mölltorp. Projektet är en efterlängtad satsning som genomförs i samarbete mellan Karlsborgs kommun och föreningen Mölltorps Ridsällskap (MRS) med ekonomiskt stöd från Allmänna arvsfonden.


